Thiết kế nội thất căn hộ 1005V2 Home City 177 Trung Kính
Home City 177 Trung Kinh nằm tại vị trí trung tâm của các Khu đô thị đã hoàn thiện như Trung Yên, Nam Trung Yên và Yên Hòa, nơi có hệ thống hạ tầng kỹ thuật đồng bộ, hoàn hảo. Xung quanh dự án là trung tâm thương mại sầm uất như Big C, Grand Plaza, Kengnam, Fivimart…
Đây là một tổ hợp chung cư cao cấp hiện đại với quy mô khá lớn:
– Tổng diện tích 1.732m2
– Mật độ xây dựng 50%.
– Quy mô: gồm 4 tòa tháp cao từ 27 – 30 tầng có chức năng thương mại kết hợp với văn phòng và nhà ở với tổng diện tích sàn xây dựng 196.161m2. Trong đó, khối đế 3 tầng và 2 tầng hầm liên thông giữa các tòa nhà.
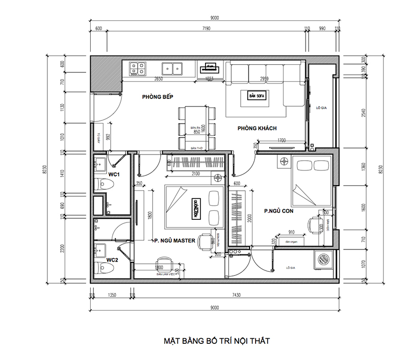
- Căn hộ 1005V2 Home City được V-Home thiết kế cho gia chủ: anh Vũ Văn Thế theo phong cách hiện đại, tận bố trí đồ đạc trong nhà đảm bảo không gian thông thoáng, đáp ứng công năng sử dụng. Căn hộ với diện tích khá nhỏ 67m2 được chia thành 2 phòng ngủ, một phòng khách, bếp và 2WC.
- Mặt bằng căn hộ:

* Dưới đây là hình ảnh thiết kế 3D nội thất căn hộ:

Kệ ti vi nhỏ sử dụng gỗ dán Acrylic trắng bóng giúp cho phòng khách sang trọng hơn

Vách kính sau sofa dán gỗ thanh tạo điểm nhấn cho phòng khách

Góc nhìn từ bếp về phía phòng khách

Kệ ti vi phòng ngủ master

Đầu giường thiết kế hệ vách tủ cao sử dụng đèn led hắt chống chói

Góc bàn làm việc và kệ sách

Phòng ngủ trẻ em với tông màu hồng chủ đạo

Góc bàn học cho bé

Tủ quần áo của bé

Kệ sách góc tủ quần áo

Nhà tắm được thiết kế sang trọng

Bàn ăn cho 6 người ngồi với hệ kính lớn tạo không gian rộng thoáng

Khu vực bếp + phòng ăn góc nhìn từ phòng khách

Bếp được thiết kế với tông màu gỗ tự nhiên nhỏ gọn




