Thiết kế Ngoại thất phong cách Tân cổ điển – Mr.Sỹ (Đông Anh, HN)

Với diện tích sàn chỉ 40m2 nhưng gia chủ lại yêu thích phong cách Tân Cổ Điển, đây là một bài toán khó cho đội ngũ kiến trúc sư V-Home. Nhưng bằng sự sáng tạo và lòng tận tâm đội ngũ chúng tôi vẫn làm được

Mỗi một khách hàng khi tìm đến với một đơn vị thiết kế – thi công nội, ngoại thất như V-Home. Ngoài việc hy vọng có thể tìm kiếm một nơi để gửi gắm niềm tin, một nơi có thể đem đến một sản phẩm phù hợp, thì hẳn là còn kỳ vọng vào một sự đồng hành dài lâu. Đôi khi khách hàng nghĩ rằng những đơn vị như chúng tôi sẽ cảm thấy ái ngại khi đối diện với những vấn đề liên quan tới hai chữ “Bảo hành”.

Nhưng sự thật lại không giống như vậy, V-Home luôn mong chờ sự nhớ đến của khách hàng dù là trong hoàn cảnh nào. Còn gì tuyệt vời hơn một cơ hội để được thấy lại một công trình đã không gặp từ lâu, được nhìn ngắm sự thay đổi của công trình do mình làm ra lớn lên cùng với những người chủ sinh sống bên trong đó, được trò chuyện cùng những vị khách đã lâu không gặp.

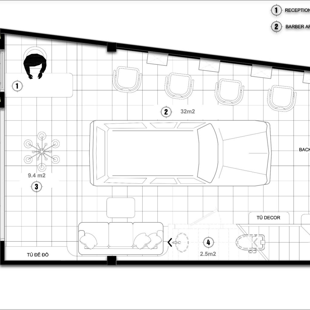
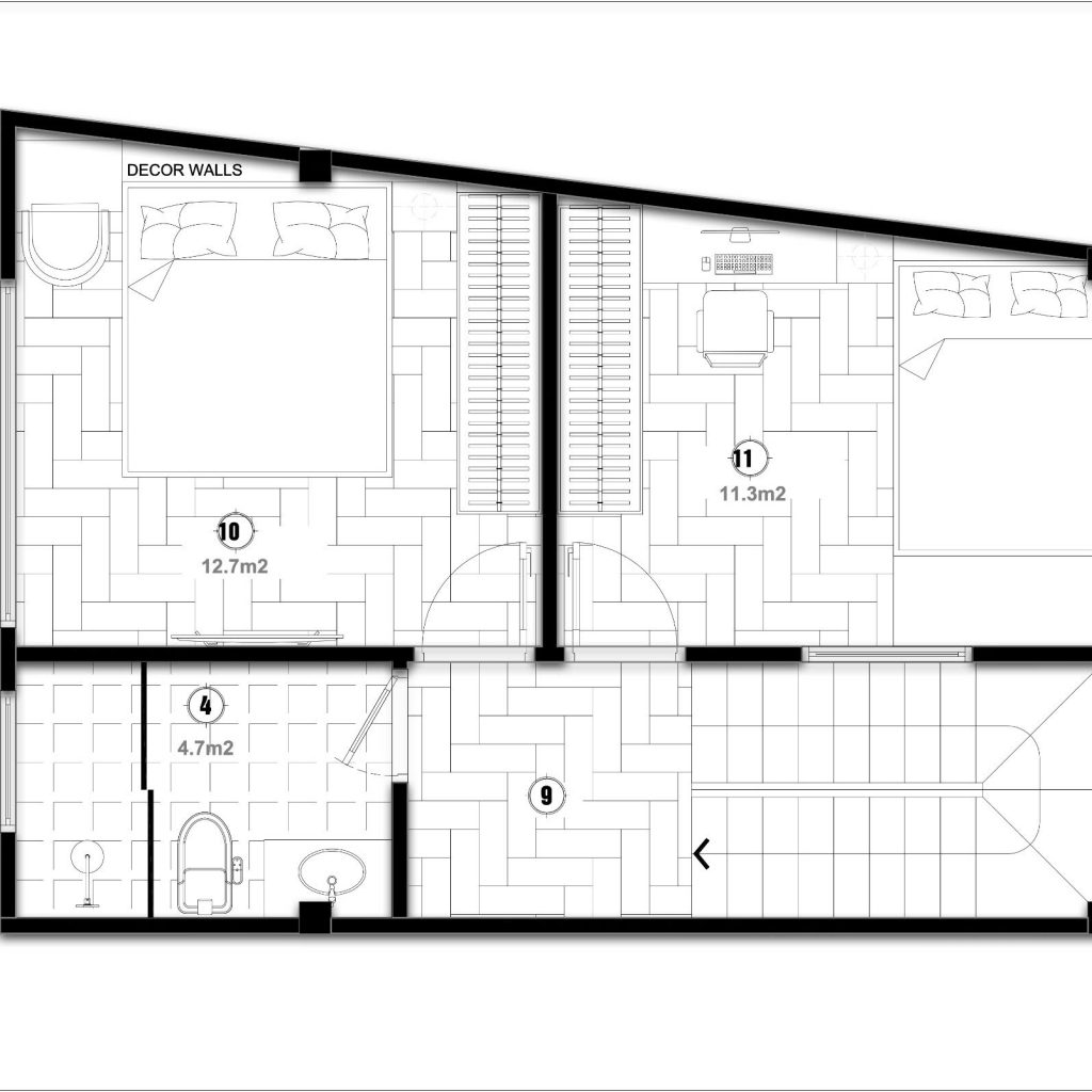
Sau đây mời các bạn tham khảo phương án mặt bằng mà chúng tôi đưa ra





Nếu quý khách hàng yêu thích phong cách thiết kế ngoại thất Tân Cổ Điển. Hãy liên hệ chúng tôi để được tư vấn:
𝐂𝐎̂𝐍𝐆 𝐓𝐘 𝐂𝐎̂̉ 𝐏𝐇𝐀̂̀𝐍 𝐊𝐈𝐄̂́𝐍 𝐓𝐑𝐔́𝐂 𝐕-𝐇𝐎𝐌𝐄
𝑉𝑎̆𝑛 𝑝ℎ𝑜̀𝑛𝑔 – 𝑆ℎ𝑜𝑤𝑟𝑜𝑜𝑚:Địa chỉ: Số 26, ngõ 1, Phạm Tuấn Tài, Cầu Giấy, Hà Nội Hotline: 0965.197.222 – 094.689.8622




